
Lo spin off APS dell'Università Mediterranea nasce circa 2 anni fa con una intuizione del prof. Valerio Morabito, docente da circa dieci anni, oltre che alla Mediterranea, anche presso la University of Pennsylvania, School of Design, Dipartimento di Architettura del Paesaggio, dove ricopre il ruolo di adjunct professor.
La professione dell'architettura del Paesaggio negli Stati Uniti sta contribuendo ad una forte rivoluzione culturale, con una costante della disciplina legata all'ecologia come agente di creatività. L'architettura del paesaggio ha assunto perciò negli ultimi anni un ruolo fondamentale nella cultura e nell'economia delle città americane, che si sta riverberando anche nel sistema culturale ed economico in Cina.
Il prof. Morabito è stato invitato a tenere una serie di conferenze presso la Tongji University di Shanghai e presso la CAA (China Accademy of Art) dal prof. Wang Shu, premio Pritzker per l'architettura 2013 che lo ha invitato ad assistere anche ad una serie di attività didattiche sul progetto dell'architettura e della rappresentazione del territorio di alcuni villaggi storici cinesi.
Sempre in Cina, la casa editrice China Architecture and Building Press, ha pubblicato il libro "The Extended Representation of Landscape. Methodology and Ideas of Valerio Morabito", giunto alla seconda edizione dopo un anno.
Da questa esperienza Valerio Morabito ha costruito l'idea dalla quale è poi nato lo spin off APS. Insieme ad altri soci tutti legati in vario modo alla Mediterranea per studio o per lavoro, tra i quali l'architetto Debora Gallina attuale CEO, il prof. Martino Milardi, l'arch. Stefania Condurso, la paesaggista Alessia Latella e l'arch. Maria Teresa Nucera. Tutti hanno lavorato per un progetto di spin off nazionale ed internazionale.

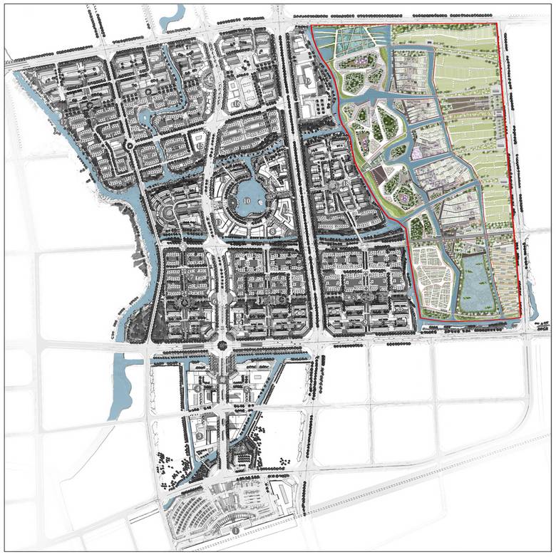
Il concorso che APS si è aggiudicato riguarda la pianificazione e il design dello sviluppo paesaggistico per una parte di una nuova città cinese a 30 minuti da Shanghai.
L'area di circa 80 ettari prevede la costruzione di una zona agricola per agricoltura biologica, una zona adibita prevalentemente a residenze turistiche con annessi giardini, ad alto valore ambientale e qualità estetica, e una zona adibita a parco che si caratterizza principalmente da ampie zone agricole di produzione. Una serie di edifici ecosostenibili, serre per esposizioni di produzioni agricole di qualità, ristoranti, centri d'arte e altro ancora, formano una serie di ulteriori ambiti spaziali e dinamici del progetto.
La strategia messa in atto nel progetto parte dallo studio del luogo, considerando come elementi fondamentali i canali esistenti di acqua, la tradizione storica delle water Town Cinesi, ed il tessuto agrario esistente.
Questi elementi sono stati una risorsa nel processo creativo della strategia di paesaggio e, messi in relazione con le attività ricreative ed economiche richieste dalla committenza, sono diventati fondamentali sia per la conservazione della diversità biologica, sia per la creazione di un'economia a ciclo chiuso, che nel tempo sarà in grado di sostenere tutte le attività del parco.
Partendo dunque dal tracciato dei canali esistenti è stata creata una nuova rete idrica, che ha reso possibile la manutenzione del tessuto agrario, la purificazione delle acque e il recupero degli habitat naturali utilizzando la vegetazione autoctona.
I nuovi canali generano il design dell'intero parco creando delle Isole all'interno delle quali trovano posto le varie funzioni. Il progetto può essere così suddiviso in tre fasce:
- nella prima ad est, confinante con la nuova città in fase di costruzione, è stato collocato il parco didattico e produttivo. Una serie di edifici contribuiscono a servire diversi servizi;
- nella fascia centrale, sono state collocate le residenze con una SPA a servizio:
- nella fascia ad ovest, sono state collocate le farm.
Le tre fasce sono percorribili trasversalmente e longitudinalmente da una mobilità dolce, che garantisce la diminuzione di agenti inquinanti nell'area.
La morfologia dell'area è stata modificata realizzando delle colline con il terreno recuperato dai vari scavi effettuati per la sistemazione degli argini dei canali esistenti e la realizzazione di quelli nuovi.
Le colline, oltre a strutturare una morfologia dinamica, sono un aspetto compositivo e di design che caratterizza la sezione dell'intero parco.
La realizzazione e l'apertura del parco è prevista per il 2015.
Progetto di: Valerio Morabito, Shuping Xian, Stefania Condurso, Alessia Latella, Francesco Belligerante, Vittorio Policaro, Debora Galliga, Gianluca Patané e Martino Milardi.